Structural 3D Modeling

At SCS, we specialize in delivering high-quality Structural Steel 3D Modeling and Detailing Services for clients worldwide—including structural engineers, steel fabricators, detailers, erectors, and construction firms.
Our skilled team uses the latest technologies and industry-standard software like Tekla Structures and SDS2 to create precise, information-rich 3D models that support every phase of your project—from design to fabrication and erection.
Structural Steel 3D Modeling We offer detailed 3D steel models containing complete geometric and structural information. Our models are:
Interactive, parametric, and optimized for use across multiple disciplines.
Designed for seamless integration into the fabrication and construction process.
Compatible with major industry software (Tekla Structures, SDS2).
These models support: Accurate visualization, Clash detection, Efficient material takeoff, Precise project planning and execution, Steel Detailing Services.
We provide comprehensive steel detailing services using Tekla Structures, delivering outputs suitable for fabrication and construction phases. Our deliverables include:

  • Customized drawing title blocks and reports
  • General arrangement drawings (plans, sections, erection views)
  • Single-part and assembly drawings
  • Fabrication and erection reports (assembly lists, part lists)
  • Accurate BOMs and CNC data for fabrication
  • Precast Concrete Detailing
Structural 3D Modeling

Shop Drawing

At SCS, we specialize in delivering high-quality, accurate shop drawings for a wide range of construction and fabrication needs. Shop drawings are detailed visual documents created by fabricators, suppliers, manufacturers, subcontractors, and consultants to guide the prefabrication and installation of specific components. These drawings serve as essential references derived from construction documentation and developed in accordance with project contracts and client specifications.
SCS is a trusted provider of comprehensive shop drawing services to clients in the USA, UK, Canada, Australia, and across the globe. Our core offerings include:
- Structural Shop Drawings
- Steel Shop Drawings
- Rebar Shop Drawings
- Precast Shop Drawings
We work closely with steel building construction firms and contractors, offering reliable outsourcing solutions at competitive rates. Our experienced team of draftsmen, detailers, and engineers leverages the latest AutoCAD technology to convert design notes, hand sketches, and paper drawings into accurate and editable digital formats such as .DWG, .DGN, .DXF, and .PDF. Our mission is to exceed expectations by delivering shop drawings that contribute to efficient construction workflows and successful project outcomes.
Our shop drawings support the successful implementation of elements such as: Structural Steel, Rebar, Trusses, Precast concrete, Elevators, Millwork, Windows, Cabinets, Air handling units, Appliances.

Shop Drawing

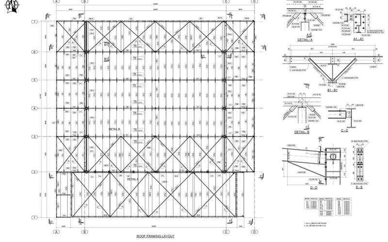
Erection Drawing

At SCS, we are a trusted provider of high-quality erection drawings and erection plans for structural steel and reinforced concrete projects. With years of experience and technical expertise, we deliver precise and cost-effective solutions tailored to the needs of fabricators, contractors, engineers, and construction firms worldwide.
Our erection drawings guide the onsite assembly and installation of structural components, ensuring seamless coordination and efficient project execution. Each set of drawings is developed with a strong focus on accuracy, constructability, and compliance with client specifications and project codes.
Our team uses the latest CAD and modeling tools to produce fully detailed, construction-ready erection drawings that support accurate onsite assembly. Whether you're a steel fabricator, industrial contractor, or structural engineer, SCS delivers solutions that work—on time, every time.
Our Erection Drawing Services Include:

  • Anchor Bolt Plans
  • Framing Layouts
  • Building Elevation Drawings
  • Sectional Elevations & Cross Sections
  • Stair & Elevator Shaft Drawings
  • Structural Connection Details
Erection Drawing

Anchor-Bolt Drawing

Anchor bolts are essential components used to securely attach structural and non-structural elements to concrete foundations. They are commonly used across a wide range of projects—from commercial buildings to industrial facilities, bridges, dams, and even nuclear power plants. At SCS, we specialize in producing highly accurate anchor bolt detailing and shop drawings for contractors, engineers, and fabricators worldwide. Our drawings help ensure secure installation, load resistance, and compliance with international construction standards.
Our Expertise Includes:
- Anchor Bolt Detailing
- Anchor Bolt Layout Plans
- Base Plate Detailing
- Embed Plate Coordination
- Concrete-to-Steel Connection Drawings
- Bolt Schedules and Material Specifications
Why Choose SCS?

  • Precise detailing for all phases of anchor bolt installation
  • Strict adherence to structural codes and safety regulations
  • Advanced AutoCAD and 3D modeling tools
  • Fast turnaround and competitive pricing
  • Trusted by global clients in diverse sectors.
Anchor-Bolt Drawing

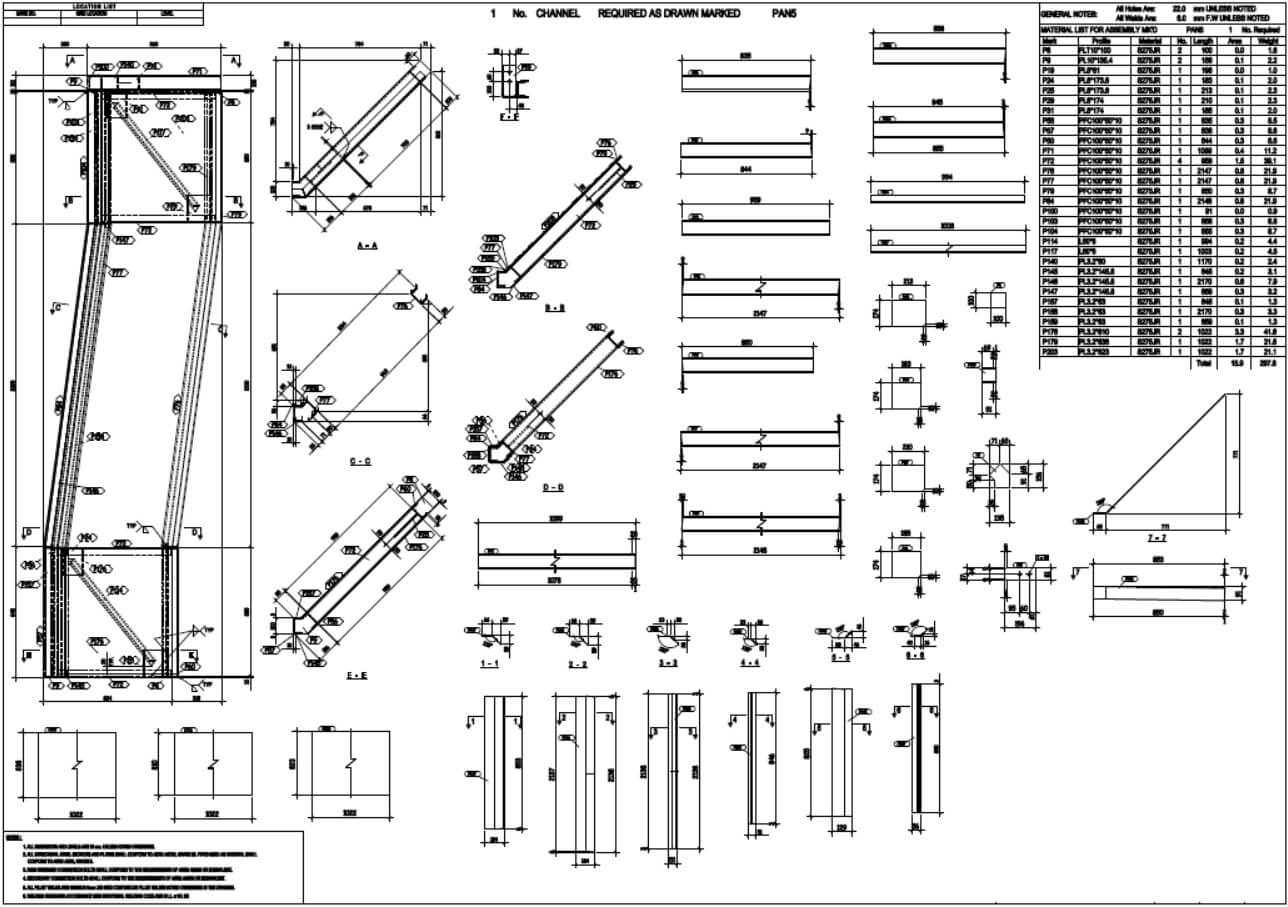
Steel Fabrication & Assembly Drawing

SCS is a trusted engineering service provider specializing in steel fabrication detailing and comprehensive fabrication drawing solutions. We deliver high-quality, precise fabrication drawings tailored for various industries and project sizes—from individual components to complex structural assemblies.
All our drawings are delivered within client-specified timelines, ensuring accuracy, clarity, and constructability.

Technology & Expertise:
Our team of skilled engineers, drafters, and detailers uses the latest software tools and industry standards to produce fabrication-ready drawings. By leveraging cutting-edge CAD platforms, we ensure all fabrication detailing is both technically accurate and project-ready.
We provide: Steel Fabrication Detailing, Steel Shop Drawings, Structural Steel Design, Metal Fabrication Consulting, Structural Steel Drawing Packages, Custom Fabrication Layouts and Part Lists.
Our Shop Fabrication Drawing Services Include:

  • Column and Beam Connection Details
  • Foundation Plans with Base Plate Details
  • Welding, Riveting, and Bolting Connection Diagrams
  • Steel Member Detailing
  • Steel Truss Member and Joint Detailing
  • Field and Shop Bolt Summaries
  • 2D/3D Assembly and Fabrication Drawings
Steel Fabrication & Assembly Drawing

Steel Bridge Detailing

At SCS, we specialize in delivering high-quality bridge detailing drawings and structural steel detailing services. As a leading India-based provider, we offer a comprehensive range of offshore structural engineering solutions to clients across the globe.
Our mission is to empower companies to outsource their non-core engineering operations so they can focus on their core business strengths. With a commitment to precision, efficiency, and reliability, SCS ensures every project meets the highest industry standards.
Our Core Specializations Include:

  • Detailed Component Modeling: Accurate 3D modeling of individual structural parts such as beams, columns, and slabs, including precise placement and alignment.
  • Special Structures: Expert detailing for complex structures like retaining walls and water-retaining systems.
  • Foundation Connections: Detailed drawings for column-to-foundation connections, including base plate configurations.
  • Connection Details: Welded, riveted, or bolted connection detailing for both special and ordinary moment-resisting frames.
  • Steel Member Detailing: Comprehensive detailing of all steel structural members.
  • Reinforcement Detailing: Precise rebar layout and reinforcement specifications for structural integrity.
  • Steel Truss Design: Detailed drawings of truss members and their connections.
  • Material Reports: Complete documentation including Advance Bill of Materials, Pre-Detailing Reports, Shop and Field Bolt Lists, and Field Bolt Location Maps.
Steel Bridge Detailing